Ref # : GE3959
For Sale € 250,000.00
Penthouse
Sannat, GOZOOverview
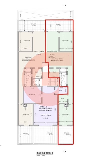
Penthouse 9 – Sannat (Outskirts), Gozo
Situated on the top receded floor of a modern block in a quiet residential area on the outskirts of Sannat, this attractive two-bedroom penthouse offers a spacious layout complemented by generous outdoor areas.
The property features an internal area of approximately 93.3 sqm and an external area of 28.1 sqm. Upon entering, one finds a bright open plan kitchen, dining and living area leading onto a front terrace of approximately 15.1 sqm, ideal for outdoor dining and relaxation. The layout includes 2 double bedroom, a main bathroom, and well-planned living spaces designed for comfort and practicality. At the rear, the property enjoys an additional private terrace measuring approximately 13 sqm, providing further outdoor living space.
Being sold finished, excluding bathrooms and internal doors, allowing buyers to finish the property according to their own taste. Optional garages available at the basement level.
A perfect opportunity as a private residence, rental investment, or holiday property in Gozo.
Additional €10,000 for Lift and Common Parts.
Features
Base Information
Parking Information
General Amenities
Exterior Amenities
Interior Amenities
Giovanni Real Estate
One of the successful real estate agency in the Maltese Islands offering property for sale and turnkey solutions in Malta and Gozo. A vast range of,Apartments, Penthouses Maisonettes, Terraced Houses, Traditional Farmhouses, Houses of character ,Bungalows, Villas, Commercial outlets, property investments and properties for sale are available in Malta and Gozo.
Check out our website, the best place to start your real estate search. You can also contact our real estate agent for a customized selection of the property types you are interested in, including professional advice and opinion.



